Desde MS Gestion Inmobiliaria te presentamos este local situado en la Calle María Berdiales, disponible, para su venta. Una oportunidad única para quien necesite un local comercial situado en una zona con un gran tránsito de posibles clientes.
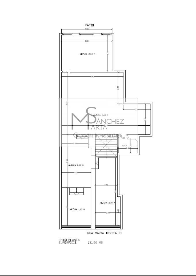
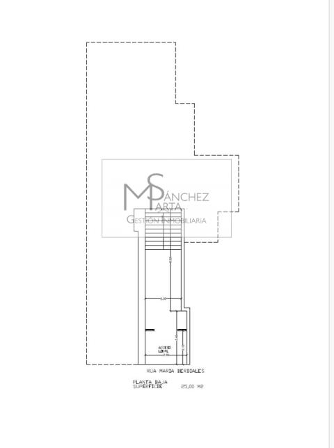
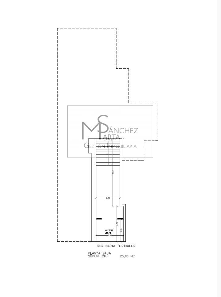
El local tiene una superficie de 163 m² en dos niveles:
- Planta baja de 25 m²
- Entreplanta de 138 m² en el que contamos con un espacio abierto para cuatro puestos de trabajo, un despacho, una sala de juntas y baño.
Tras una adecuada adaptación a tu negocio, se puede convertir sin duda en el lugar ideal para desarrollar ese proyecto que tienes en mente
Se trata de una fantástica oportunidad para instalar tu negocio en una de las zonas más céntricas y exclusivas de Vigo, a escasos metros de la Calle Urzaiz y Gran Via, muy próximo al Corte Inglés , y al corazón comercial y financiero de la ciudad. También cabe destacar su proximidad a Vialia . la nueva estación INTERMODAL.
Si estás buscando crear nuevos proyectos ¡estás de suerte! ¡No dejes pasar esta oportunidad perfecta para inversores!
¿Necesitas ayuda con la financiación? ¿Te preguntas cómo vas a pagar esta vivienda? En MS GESTIÓN INMOBILIARIA dispondrás siempre del asesoramiento financiero que necesites de la mano de nuestros colaboradores especialistas. Todo, por supuesto, sin ningún coste ni compromiso.
Nota: este anuncio es meramente informativo y carece de valor contractual, puede contener algún error involuntario.
¡Consúltanos!

