Desde MS Gestión Inmobiliaria te presentamos en exclusiva esta vivienda de 187 m2 en pleno centro de Ourense, perfecto para quien desea un espacio amplio y funcional. Es el tándem perfecto para vivir en una zona céntrica, rodeada de comercios, con todas las facilidades para moverse por la ciudad.
Ubicado en la Avda. De La Habana, a un paso de la arteria principal de Ourense como es la calle del Paseo o el Parque de San Lázaro .
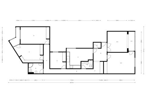
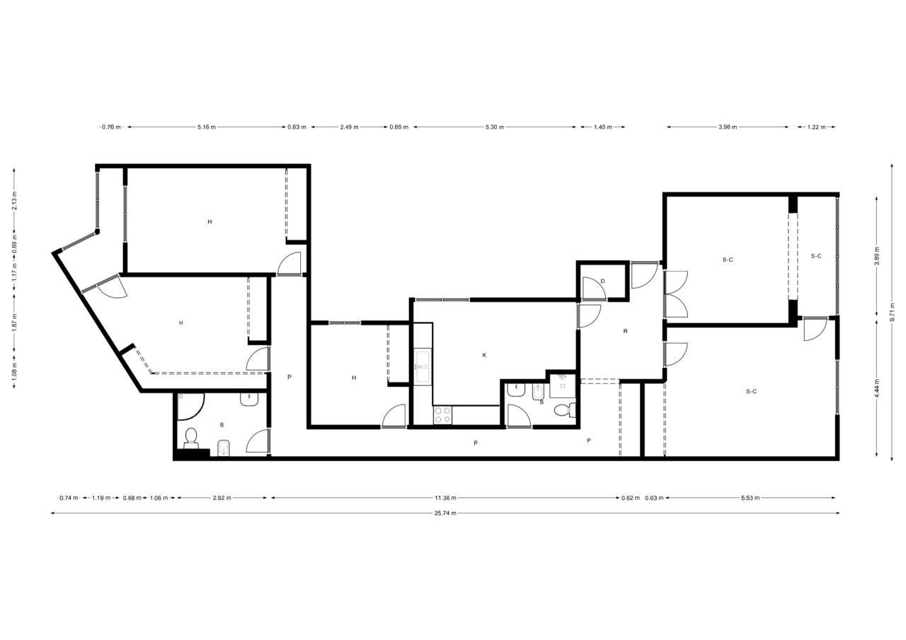
El Piso , una segunda planta, consta de 187 m2 construidos distribuidos de la siguiente forma:
-Amplio hall recibidor, desde el que accedemos a las estancias, con dos armarios empotrados y una habitación despensa.
- 4 amplias habitaciones (dos de ellas con armarios empotrados)
- 2 cuartos de baños completos con plato de ducha, uno de ellos reformado recientemente
- Cocina completa en forma de L con zona de Office y acceso a balcón con lavandería
- Un gran salón comedor exterior con luz directa. El salón comedor es de grandes dimensiones, unos 20 m2 y está unido mediante puerta con una de las habitaciones.
Ventanales con rotura de puente térmico y oscilobatientes
Puertas de madera en toda la vivienda, algunas con vidrieras de colores
Edificio del año 1972 sin barreras arquitectónicas, dispone de 2 ascensores desde los que podemos acceder a la plaza de garaje y trastero.
En MS Gestión Inmobiliaria contamos con un asesor financiero que buscará un producto a tu medida. Sin estar vinculados a ninguna entidad bancaria, obtendremos la mejor opción para tu operación. Si eres agente inmobiliario y tienes un cliente para este inmueble, llámanos; estaremos encantados en colaborar.
¡Consúltanos!

