Desde MS GESTIÓN INMOBILIARIA os presentamos parcela en venta en el municipio de Cotobade, parroquia Tenorio, lugar palleiros a tan solo 10 kilómetros de Pontevedra, ofrece una serie de características que la hacen atractiva para la construcción de una casa unifamiliar. A continuación, os presentamos una descripción técnica detallada:
-Ubicación: Se encuentra en el municipio de Cotobade, a 15 minutos de Pontevedra, lo que ofrece fácil acceso a servicios y comodidades urbanas.
-Dimensiones: Se proporciona información detallada sobre el tamaño parcela de 914 metros cuadrados, la forma de la parcela es en inclinación lo que la hace ideal para percibir la luz solar durante todo el día.
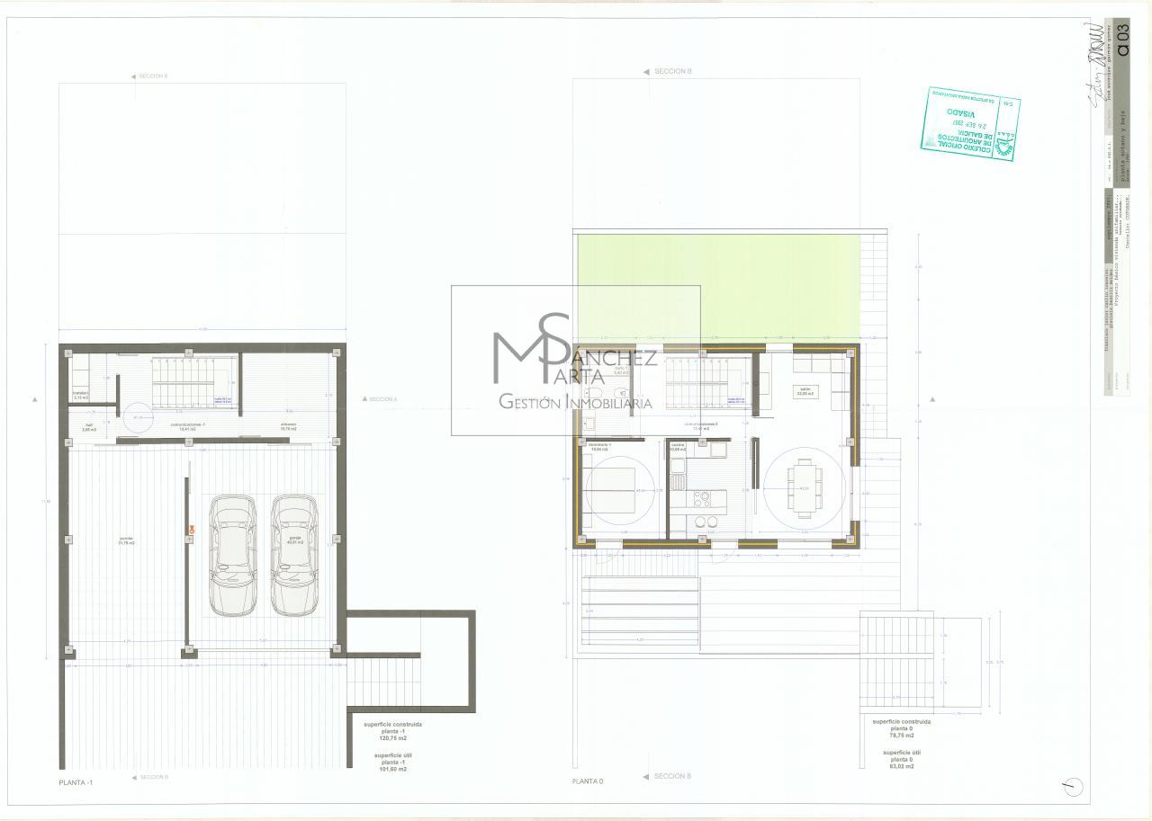
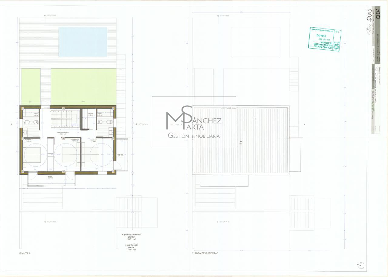
-Licencia y proyecto: La parcela cuenta con una licencia de construcción aprobada y un proyecto arquitectónico para una casa unifamiliar de tres plantas: sótano, planta baja y planta primera. Informe geotécnico realizado.
-Diseño de la casa: El proyecto arquitectónico detalla el diseño de la casa unifamiliar, que incluye información sobre la distribución de espacios, materiales de construcción, acabados, y otras características relevantes
-Piscina: El proyecto también contempla la construcción de una piscina en la propiedad, lo que añade valor y comodidad a la vivienda.
-Autorización de hidrográficas: Se menciona que la parcela cuenta con autorización de las autoridades hidrográficas, lo que puede ser relevante en áreas cercanas a cuerpos de agua, ríos, o zonas con regulaciones especiales de construcción.
-Infraestructura y servicios: Se puede incluir información sobre la disponibilidad de servicios públicos como agua, electricidad, acceso a vías de comunicación.
-Entorno y vistas: Se pueden destacar las características del entorno natural que rodea la parcela, así como vistas panorámicas que pueda ofrecer, en un núcleo rural en crecimiento
El solar en venta en el municipio de Cotobade ofrece una oportunidad para la construcción de la casa unifamiliar que estabas buscando con todas las autorizaciones y proyectos necesarios,lo que la convierte en una opción atractiva para aquellos que buscan un lugar para construir su hogar en una ubicación ideal y con todas las comodidades a su alcance.
En MS Gestión Inmobiliaria dispondrás siempre del asesoramiento financiero que necesites.
Representamos este inmueble en exclusiva. Nuestra filosofía es la colaboración, así que si eres agente inmobiliario y tienes un cliente al que pueda interesarle este inmueble, no dudes en ponerte en contacto con nosotros.
Este anuncio es meramente informativo y carece de valor contractual, puede contener algún error involuntario.
¡Consúltanos!

